

LK-XX楔形流量計是一種新型差壓式流量測量儀表,其檢測件是一個V字形楔塊(又稱楔形節流件),它的圓滑頂角朝下,這樣有利于含懸浮顆粒的液體或粘稠液體順利通過,不會在節流件上游側產生滯留。因此它可以在高粘度、低雷諾數的流體情況下進行高精度的流量測量;在流速較低、流量小、管徑大的流量測量場合有無可比擬的優勢和不可替代的作用。主要用于高粘度(重油、渣油、柴油、機油等)、工業煤氣(焦爐煤氣、高爐煤氣、發生爐煤氣、城市煤氣)、氫氣、氮氣、空氣、水蒸汽、污水液體等介質的流量測量。
|
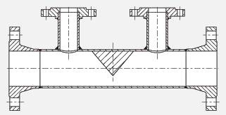
楔形流量傳感器結構如右圖所示。楔形流量傳感器的檢測件是楔形孔板,它是一塊V形節流件,它的圓滑頂角朝下,這樣有利于含懸浮顆粒(粉塵、泥沙及其它固體顆粒)流體和高粘度液體流過時在節流件上游側不會產生滯流,也不會在節流體上、下游側發生固體顆?;蛘吵砦锏姆e存,從而確保了楔形流量傳感器長期運行精度在0.2級,這樣高的長期運行精度在流量測量領域是迄今少見的。 |
![]() |
| 流量方程式------------------------------------------------------------------------------------------------------------------ | |
![]() |
式中: |
LK-XX楔形流量計特點
1. 可用于粘滯性液體的流量測量,黏度可高達500mPa·S,如燃油、渣油及重油等。
2. 適用于含懸浮顆粒的液固混合物,如漿狀流體、污水等的流量測量。
3. 混相流型楔形流量計可用于泥漿、煤水懸浮液、煤焦油、懸濁液等液固兩相流。
4. 雷諾數使用范圍寬廣,可適用于極低的雷諾數(ReD=300),而雷諾數上限可達106以上,因此亦可用于氣體、蒸汽之類流體的流量測量。
5. 差壓信號穩定可靠,測量精度高,重復性好,壓力損失低。
6. 抗磨損免維護(無可動部件)。
7. 整體結構形式無可動部件,使用壽命長。
8. 安裝方便,免于維護。
9. 雙向流量測量。
10. 具有最小的直管段要求:上游5倍管道直徑,下游2倍管道直徑。
LK-XX楔形流量計技術參數指標
1、 精度:±1.0%讀數(標定)、±1.5%
2、 重復性:±0.2%讀數
3、 公稱通徑: 25 mm~800 mm
4、 工作溫度: -200℃~+530℃
5、 公稱壓力:- 0.1 MPa~42 MPa
6、 楔形比:0.2 0.3 0.4 0.5
7、 量程比:10:1
8、 低雷諾數測量(最低為ReD=300)
9、 參照標準:GB/T2624-2006、 JJG640-94及流量測量節流裝置設計手冊
10. 連接方式:法蘭連接、焊接、螺紋連接
楔形流量計結構形式
楔形流量計按其組裝方式分為一體型和分離型,按其連接方式分為法蘭連接、焊接連接、螺紋連接及對夾式連接,按其取壓方式分為普通取壓、法蘭密封取壓等結構

對 夾 式

焊 接 式

法蘭連接

法蘭連接法蘭取壓

一體化安裝
LK-XX楔形流量計安裝注意事項
1、 一般楔形流量傳感器附有前后測量管,可在水平或垂直安裝及使用。當傳感器在垂直管道上安裝時,流體應自上而下流動。測量液體時應注意使差壓變送器能翻遍地排除氣泡,以免引起儀表零點漂移;
2、傳感器上下游側應配置直管段,管道內壁應光滑、清潔、無附著物,只管段長度如表
3、 水平安裝時,楔式差壓元件應與管道中心線成90度。對于垂直安裝,由于取壓點之間輕微的靜壓影響必須注意差壓變送器調零楔形流量計上游側最小直管段
如下表
|
楔形比 H/D |
上 游 側 最 短 直 管 段 |
|||
|
彎頭90° |
T形三通 |
球閥 |
閘閥(全開) |
|
|
0.2 |
6 |
6 |
10 |
6 |
|
0.3 |
8 |
8 |
11 |
6 |
|
0.4 |
12 |
12 |
14 |
8 |
版權所有 Copyright(©)2009-2011 江蘇力科儀表有限公司
電話號碼:0517-86909222 商務熱線:15305232668 傳真:0517-86909221
地址:江蘇省金湖縣工業園
技術支持:易品網站建設專家 蘇ICP備13047422號-2